Appartenant à un ensemble de « walk-up » typique des années 60, le réaménagement complet de la résidence Fabre se fait discret, voire invisible de la rue. C'est de l'intérieur qu'il prend tout son sens.
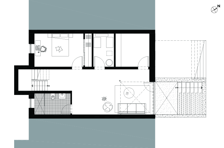
La structure du duplex existant, avec son rez-de-chaussée surélevé et sa cage d’escalier intérieure en saillie sur la façade avant, donne le ton à la reconfiguration de l’espace alors que le respect de la logique organisationnelle du bâtiment est privilégié par clients et concepteurs. La cour arrière, sa lumière douce et son déploiement naturel en paliers, devient d’ailleurs une inspiration précieuse à la refonte spatiale.
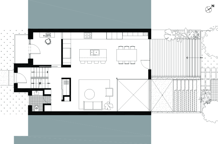
Pour répondre à leurs souhaits, les architectes de Microclimat ont revu l’aménagement des aires de vie (cuisine, salle à manger, salon), en les plaçant à l’arrière de la demeure et en ouvrant les unes sur les autres. Une telle disposition permet à la jeune famille de se rassembler dans des lieux d’une ampleur enveloppante, intimes sans toutefois être privés.

L’idée d’ouverture est principalement exploitée avec par l’intégration d’une double hauteur qui permet une communication entre le rez-de-chaussée et le sous-sol. Toujours dans l’optique de créer un maximum de liens entre les espaces, une attention spéciale est accordée à la relation entre la maison et la cour, sur ces deux niveaux.
Le sous-sol devient encore plus lumineux avec la juxtaposition d’une cour anglaise pavée et végétalisée. Cette astuce donne une nouvelle identité à ce palier parfois délaissé, qui se transforme en un espace chaleureux en dialogue autant avec l’intérieur de la demeure qu’avec l’extérieur.
Alors que les aires de vie sont rassemblées vers l’arrière, les pièces aux fonctions plus restreintes (un bureau, les toilettes, le vestibule) restent cloisonnées et s’ajustent aux contraintes dictées par la façade avant, qui est demeurée intacte.

Si la façade avant a été laissée telle quelle, la façade arrière, elle, a été remodelée pour faire écho à l’aménagement intérieur. Un contraste donnant une impression d’équilibre a été imaginé, avec d’un côté, un revêtement en bois foncé, et de l’autre, un enduit acrylique pâle. Vu de la ruelle, le large bâtiment se présente ainsi sous une apparence plus agréable et plus humaine.
Crédit Photo: Adrien Williams