Unsplash

Au dernier étage d’un immeuble presque centenaire du Vieux-Montréal, la longue et étroite suite qui accueille les bureaux d’Unsplash prend des airs à la fois joyeux et sobres.

Lieu

Montréal (Qc)

Services

Architecture

Année

2020

Superficie

3000 p2

Collaborateurs

Avantage Plus (A+)

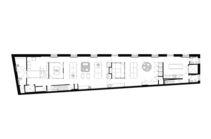
Unsplash, une compagnie qui développe sur le Web des répertoires de photos accessibles à tous, souhaitait offrir à ses employés un espace de travail qui inspire le confort d'un foyer. La mission, pour les architectes de Microclimat, était d’aménager cet espace atypique de 3000 pieds carrés, étroit et légèrement en angle, pour accueillir les 18 membres de l’équipe et trouver le bon dosage entre interaction et intimité.

Entrée surplombée de lumière naturelle grâce à un grand puit de lumière.

La suite, limitée par sa taille et sa géométrie, a été réfléchi pour permettent aux membres de l'équipe de moduler quotidiennement leur ambiance de travail. Conçue sous le principe de bureaux en aire ouverte, des espaces clos et multifonctionnels ainsi que divers espaces de détente ponctuent et dynamisent l'aménagement. Le résultat est un espace de travail lumineux, dans lequel les employés peuvent autant profiter de moments ensemble que de périodes de tranquillité en se retirant dans les aires plus privées.

Percée visuelle depuis l'accueil

Deux longs corridors entourent l’espace central où se trouvent trois îlots de six bureaux qui ont été disposés perpendiculairement aux grandes fenêtres, suivant le rythme imposé par celles-ci. Ces îlots sont séparés les uns des autres par un petit salon et deux salles cloisonnées. Partiellement vitrées (bien que garnies de rideaux), elles offrent toutes deux une ambiance plus feutrée que les environnements à aire ouverte. Ces espaces, volontairement comprimés en hauteur, permettent à la lumière de circuler à travers toute la suite comme leurs cloisons ne rejoignent pas le plafond.

Une palette sobre et neutre, rehaussée de quelques touches colorées, a été mise de l’avant en harmonie avec les tons clairs des planchers d'érable existants. L’utilisation de feutre pour couvrir les murs des salles fermées donne un aspect chaleureux, en plus d’avoir des propriétés acoustiques renforçant le sentiment d’intimité.

Vu la disposition en longueur de la suite, les espaces ont été organisés en suivant une logique du public au plus privé. Ainsi, on trouve près de la réception, une salle de conférence, puis un premier groupement de bureaux. Suivent ensuite, en alternance, des espaces de travail plus informels, d’autres bureaux, des petites salles individuelles pour du travail confidentiel ou de concentration, une salle de détente, puis, à l’autre extrémité, l’espace repas.

En réponse aux besoins des membres de l’équipe, une 'nursery' a été aménagé pour favoriser la conciliation travail-famille. Un ajout qui souligne, une fois de plus, l’importance pour Unsplash de procurer à ses employés un environnement de travail où ils se sentent un peu comme à la maison.

Crédit Photo: Samuel Pasquier