Une maison s'installe sobrement dans le voisinage de Rosemont, par un jeu de volumes qui parfois s’avancent, parfois se retirent pour orienter les regards et habiter un paysage en gradins.
Après un séjour prolongé sur le bord d’une piscine banlieusarde, Jean-Yves décide de retourner vivre en ville. Ayant mis la main sur l’un des rares terrain vacant du secteur, l’ancien stationnement de la maison adjacente, il contacte Microclimat afin d’explorer les potentiels de ce lot sous-utilisé. Marquée d’opportunités et de contraintes, cette démarche vise à concevoir un habitat convivial et flexible dont l’architecture défierait le passage du temps.
 
 
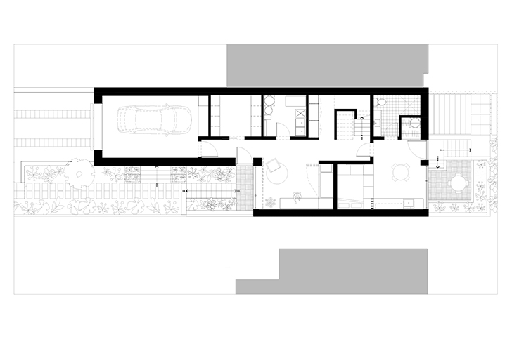
Le résultat du projet 2e avenue: une maison d’environ 2500 pi2 sur 3 étages qui emprunte de nombreux atouts des bâtiments pavillonnaires de la banlieue et intègre un petit studio indépendant au sous-sol. Cette demeure agence harmonieusement différents volumes qui s’installent sobrement dans le voisinage tout en assumant ses lignes contemporaines.
 
  
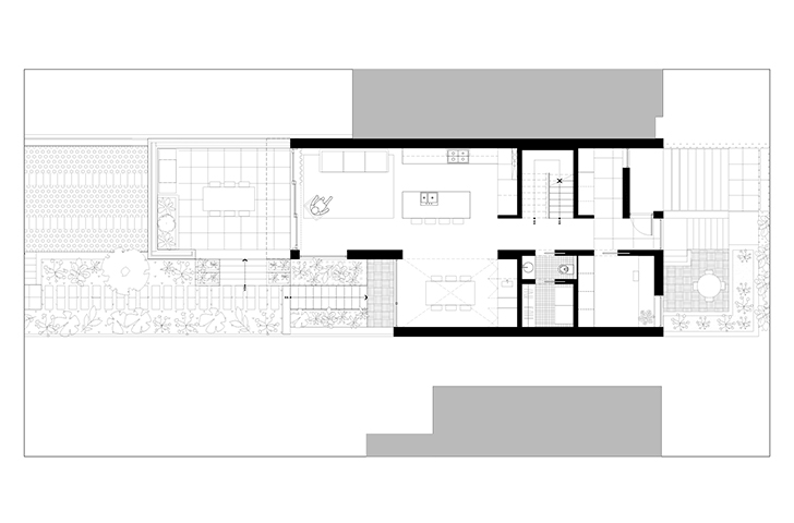
Dans l’appartement principal qu’occupe la famille, la cuisine, la salle à manger et le salon – des pièces communiquant les unes avec les autres - s’ouvrent généreusement vers la cour arrière par une fenestration abondante.

 
 
 
 
Ces aires de vie occupent la partie arrière d’un rez-de-chaussée surélevé de quelques marches par rapport au sol et proposent un lien direct vers une grande terrasse perchée au-dessus du garage. Entourée d’un muret de briques, cette terrasse s’offre à la fois comme un promontoire vers la ruelle et comme un espace protégé.
 
 
 
 
Si la discrétion des activités qui se passent à la cuisine et au salon est soutenue par les murets massifs de la terrasse et la présence d’un léger porte-à-faux; un recul volumétrique important permet, lui, de conserver le caractère intime des pièces exposées au grand mur rideau.
 
 
 
 
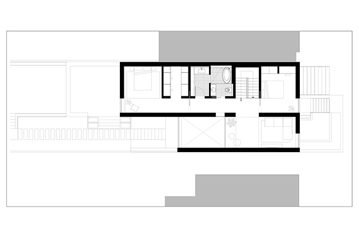
Les espaces plus intimes du grand appartement sont situés au deuxième étage, proposant 2 grandes chambres, une salle de bain partagée et une pièce multifonctionnelle au croisement de tous les usages. Cette pièce traversante, qui évoluera selon les besoins de la famille, se lie verticalement à tous les niveaux de la maison, de son grand puit de lumière central à sa généreuse double-hauteur vers les aires de vie et la cour.
 
 
Avec la particularité d’une importante différence entre les niveaux de la rue et du terrain côté ruelle, différentes stratégies d’organisation verticale ont été imaginé pour faciliter les transitions et même densifier le projet.
 
 
La création d’un sous-sol confortable permis ainsi l’intégration d’un petit studio sur rue et la dissimulation d’un garage accessible depuis la ruelle. Ces espaces souterrains animent également le paysage des cours qui se plaisent à s’immiscer à tous les niveaux.
 
 
Jonglant entre ces particularités et la liberté inhérente à une construction neuve, l’équipe de Microclimat a conçu une résidence où les glissements des volumes créent différents environnements en paliers. Des plateaux habitables qui proposent une multitude d’expériences quotidiennes grâce aux parcours qu’ils offrent, autant à l’intérieur qu’à l’extérieur.
 
 
 
 
 
 
 
 
Crédit Photo: Adrien Williams