Bousculés par l’arrivée prochaine d’un deuxième enfant, Laurence et Charles souhaitent transformer leur résidence pour mieux s'enraciner dans leur quartier.
Ça prend du temps pour bien connaître un lieu, des fois plusieurs années. Il faut y passer des après-midi éblouis par le soleil hivernal et de longues soirées d’été humides, entassés dans la cours arrière. C’est en possédant ce bagage de connaissances intimes que Laurence et Charles entament le projet de réimaginer leur chez-soi.
À l’ombre d’un grand frêne torsadé, la composition de la façade avant demeure intacte tandis que la façade arrière arbore une nouvelle matérialité ; une palette de couleur qui contraste avec la pierre de calcaire empilée du côté de la rue Laporte.
À l’arrière, le premier étage est enduit d’un crépi blanc, presque neige. Le deuxième étage propose un parement métallique réfléchissant, rappelant les parapets de tôle qui couronnent les bâtiments voisins. Ce choix de matérialité permet de refléter la lumière vers les pièces intérieures, créant un jeu d’illuminations miroitantes.
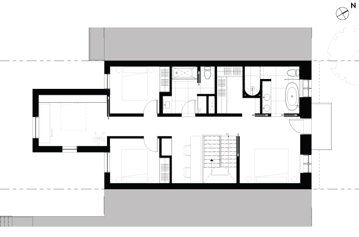
Le projet Laporte conserve la même implantation et volumétrie que le bâtiment initial. C’est plutôt l’intérieur qui se transforme. Les deux logements sont fusionnés en repositionnant l’escalier au centre de l’habitation. Cette stratégie de reconfiguration vise également à ouvrir les pièces de vie du côté de la ruelle. La lumière du sud-ouest peut alors s’inviter plus facilement dans les espaces du quotidien.
La conversion d’un duplex en maison unifamiliale force également à repenser et rééquilibrer la relation entre les espaces de cohabitation et ceux de l’intime.
Au rez-de-chaussée, l’expérience propose une transition. Du vestibule clos, où seul un mur de verre opaque donne l’indice des autres pièces, on avance dans un salon entrouvert, avant d’arriver à un espace dégagé où se rencontre la cuisine, la salle à manger la salle familiale.
À l’étage, à l’est se situe la chambre des maîtres avec sa grande salle de bain et son walk-in. Tandis qu’à l’ouest, une seconde salle de bain, un bureau adossé à l’escalier et deux chambres s’organisent le long d’un corridor donnant sur la deuxième salle familiale, dans l’annexe. L’un des gestes centraux du projet et le déplacement de la cuisine à l’intérieur du carré originale du bâtiment, permettant de dégager l’annexe où autrefois elle était restreinte.
Cette tour offre alors deux pièces flexibles à la famille de Laurence et Charles. Des pièces indécises, qui semblent appartenir tant à la maison qu’à la cour. Des lieux pour jouer ou contempler en retrait du quotidien, où les rayons et reflets du soleil nous enveloppent.


Crédit photo : Adrien Williams