À la suite d'un incendie dans La Petite-Patrie, un terrain vacant devient l'opportunité pour une famille d'y rêver leur chez-soi.
Aux débuts des années 2010, les flammes emportent un duplex de La Petite-Patrie. Une disparition silencieuse pour le patrimoine modeste montréalais. L’incendie crée alors une brèche anormale sur la rue Saint-Vallier : un terrain vacant dans un chapelet de plex ocres et rougeâtres. Cette anomalie urbaine devient rapidement une opportunité pour une famille de quatre d’y rêver leur chez-soi, une grande demeure de deux étages et un logement au sous-sol pour la famille ou pour la location.
Si le « vide » inspire parfois des possibilités infinies, ce n’est pas le cas ici. Dès le départ, l’idée est plutôt de réimaginer le duplex disparu ; de concevoir un projet qui répond aux besoins contemporains des futurs résidents, mais qui s’inscrit dans la continuité de ce patrimoine architectural du quotidien.
Le projet Saint-Vallier emprunte donc l’implantation et la volumétrie du bâtiment qui l’a précédé. La façade avant s’insère en harmonie avec son voisin au sud et en retrait de son voisin au nord, permettant de préserver la petite cour avant caractéristique de La Petite-Patrie. Ce dégagement accueille un grand saut-de-loup, qui illumine le logement du sous-sol tout en laissant suffisamment d’espace pour y aménager un jardin d’arbustes et d’herbacées.
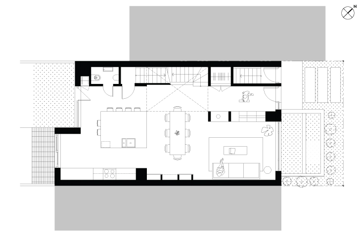
Du côté de la ruelle, la cour arrière est divisée en deux espaces contrastants. D’une part, il y a un lieu dégagé et végétalisé, l’endroit idéal pour se prélasser au soleil ou courir après un ballon. De l’autre, une immense pergola se déploie du bâtiment principal jusqu’au commencement de la ruelle.
Une canopée artificielle qui propose différentes intensités d’ouverture, pour laisser passer la lumière comme les feuillages, et de fermeture, pour protéger l’ombre et l’intimité côté cour.
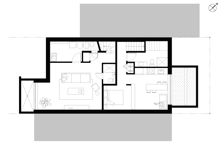
Une fois à l’intérieur et après avoir enjambé le ciao ! ciao !, une anecdote familiale immortalisée à même la tuile du mud room, un espace ouvert dévoile la demeure.
Au premier regard, on y entrevoit l’escalier massif en noyer ainsi que la double hauteur couronnée d’un luminaire sculptural, confectionné par Atelier Filz.
Finalement, ce sont la pergola et ses verdures qui attirent l’attention, tout au bout de l’espace de circulation. Cette organisation dégagée du rez-de-chaussée atténue les distinctions entre espaces intérieurs et extérieurs ; un clin d’œil à cette parenthèse historique du terrain libéré suite à l’incendie.
À l’étage, trois chambres s’organisent autour d'une grande aire de jeu. La chambre des maîtres communique avec la cour arrière grâce à une vaste ouverture, une interprétation simplifié de la loggia ; le dedans et le dehors s’entremêlent. Un lieu pour contempler les toits du quartier, saluer un voisin ou inviter les enfants turbulents à rentrer.
Ce projet partage autant de différences que de ressemblances avec l’ancien duplex. Deux bâtiments étrangers, mais possédant des intentions identiques.
