Duplex
Christophe-Colomb

Un frère et une sœur ont le projet commun de construire une nouvelle bâtisse afin d'y installer leurs deux familles.

Lieu

Montréal, Qc

Services

Architecture

Année

2019

Collaborateurs

Hu-Nic Construction

Un frère et une sœur ont le projet commun d’investir dans un quartier recherché de la métropole montréalaise pour y construire une nouvelle bâtisse, à même d’accueillir leur famille respective. Lui vit déjà à Montréal avec sa femme et son enfant, elle quittera Philadelphie pour s’établir en ville avec son conjoint et ses deux enfants. Le terrain est vite choisi : il s’agit de celui actuellement occupé par le frère, au cœur de Rosemont-La-Petite-Patrie. La vétusté de la maison existante conduit rapidement à la décision d’une démolition totale à la faveur d’une construction neuve, pour laquelle la fratrie fait appel à Microclimat.

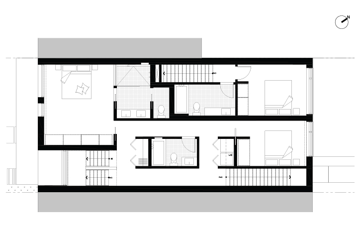
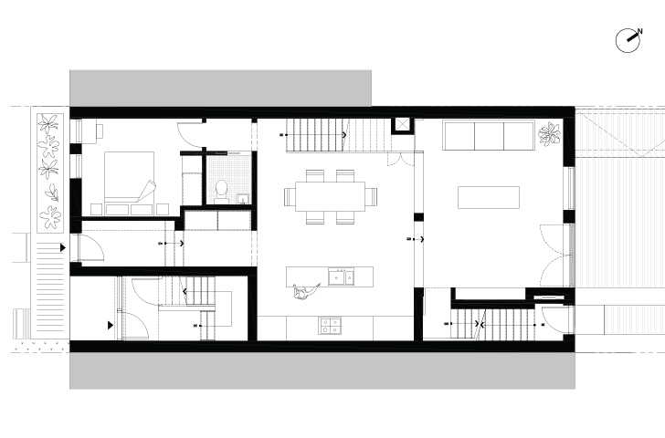
La commande est aussi simple qu’elle est complexe : construire un duplex imbriquant étroitement les deux logements tout en préservant leur autonomie, et ce malgré la création de nombreuses ouvertures et aires extérieures.

Aussi, le projet est conçu en relation à deux espaces majeurs : une cour arrière, associée au logement inférieur, et un patio central, associé au logement supérieur.

L’organisation des pièces est pensée de façon à maximiser les liens physiques et visuels à ces deux espaces, sans compromettre l’intimité de chacun des cocons familiaux.

Développée sur trois étages, la construction superpose les deux unités, chacune bénéficiant d’un niveau complet, auquel s’ajoute une partie du niveau intermédiaire. L’idée est d’offrir des logements traversants, ouverts à la rue comme à l’arrière, et dont les qualités d’espace et de lumière seraient strictement équivalentes, à quelques pi² près. Un jeu de terrasses en escalier est ainsi donné au logement ne bénéficiant pas d’un contact direct avec le sol. Les zones jour et nuit sont quant à elles superposées afin de préserver la tranquillité de chacun.

Au sein des logements, une palette sobre et intemporelle habille les espaces où la lumière et la blancheur dominent. Ceux-ci se voient réchauffés par la forte présence du bois, que l’on retrouve dans les planchers, la menuiserie et le mobilier.

La couleur intègre en outre le projet à travers ses aménagements extérieurs, grâce à l’emploi d’un crépi de teinte ocre dans le patio et d’une végétation abondante dans la cour.

Une géométrie très simple et des ouvertures généreuses affirment le caractère contemporain du monolithe, tout en assurant son intégration au contexte environnant. Les alignements du front à rue sont respectés, de même les gabarits et les matérialités. Les dégradés gris-bruns de la brique de façade reprennent ainsi les couleurs alentours. Deux entrées privatives permettent au frère et sœur de se sentir « chacun chez soi », et pourtant très proche de l’autre.

Crédit photo : Adrien Williams, Samuel Pasquier