Restaurant
Arvida

Un changement important s’est produit au 70 rue Principal de Granby : la transformation d'une cantine en bar à vin valorisant les produits frais et locaux.

Lieu

Granby, Qc

Services

Architecture

Année

2020

Superficie

2350 pi2

Pour plusieurs, Arvida est le nom d’une ville industrielle mythique, pour d’autres il s’agit d’une petite rue de Granby où un frère, devenu chef cuisinier, et une sœur, devenue architecte, ont grandi.

Attaché à la maison familiale où tout a débuté, Jonathan Cabana savait, depuis ses premiers désirs d’être à la tête de son propre restaurant, que l’endroit se nommerait Arvida ; que sa sœur en imaginerait l’architecture ; et que ce lieu serait peuplé de souvenirs de famille et de clin d’œil aux paysages estriens. C’est donc à l’hiver 2019, à la suite de la fermeture d’une pataterie populaire sur la rue principale de Granby, que Jonathan trouva le local idéal pour y accueillir son projet.

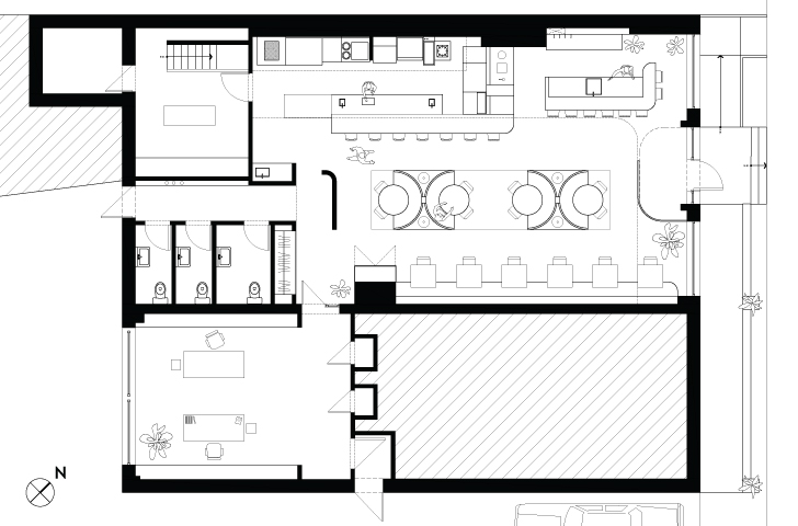
Le défi architectural était aussi grand que le défi culinaire. Le nouveau restaurant souhaitait réduire considérablement le nombre de places assises de cette vaste salle à manger et y créer une ambiance chaleureuse, confortable et festive.

Les courbes et détails arrondis, celle du vestibule ou de la retombée de plafond, ont donc été imaginés afin de guider le parcours des clients.

Ces détails arrondis ont inspiré l’implantation, au cœur de l’espace, de banquettes massives et enveloppantes qui adoucissent le caractère linéaire de la salle et invitent aux rassemblements intimes.

Une longue banquette murale s’élance de la façade avant jusqu’au cellier à charcuteries et répond à l’emplacement de la cuisine qui a été conservée du côté opposé.

Pour balancer son horizontalité, accentuée notamment par le piqué des coussins, une bibliothèque intégrée entre la banquette et la retombée de plafond rythme chaque section d’assise et est animée de différents artéfacts, conserves et ouvrages. Une composition aux airs familiers qui rappelle le confort de notre salon.

Attaché au concept de cuisine ouverte, le Arvida dispose deux grands comptoirs en enfilade. L’un invite les clients, dans l’attente de leur table, à patienter tout en dégustant les nouveaux arrivages. L’autre offre une position où l’on peut à la fois entreprendre l’aventure culinaire et regarder les cuisiniers et cuisinières se donner en spectacle. La nouvelle configuration propose ainsi 3 environnements distincts pour la dégustation et les festivités qui, ensemble, parviennent à faire oublier l’échelle de l’espace et où tout le monde peut s’y mettre à l’aise.

À l’image des saisons qui se retrouve dans les plats du Arvida, la palette de matériaux et de couleur, à la fois sombre et lumineuse, rappelle des compositions et textures naturelles.

Pour complémenter les chaleureuses insertions de bois, différents accents de vert et de brun orangé s’alternent ; teintes pouvant rappeler celles des sous-bois où s’entremêlent des conifères vert-sombre et des chanterelles éclatantes.

L’architecture du restaurant Arvida n’est qu’un indice de ce qui se retrouve dans l’assiette. Elle annonce une cuisine minimaliste, une cuisine attachée aux traditions et à la famille, une cuisine qui émerge du territoire qui l’entoure.

Crédit photo : Adrien Williams