Maison
Berri

Une maison située sur un petit lot montréalais, répondant au désir des propriétaires de valoriser une plus grande intimité, et d'introduire une cour au cœur du logement.

Lieu

Montréal, Qc

Services

Architecture

Année

2020

Superficie

2640 pi2

Collaborateurs

Les Espaces PER/SO

Situé dans Villeray – près du marché Jean-Talon, au cœur des activités d’un quartier prisé –, le terrain n’offrait pratiquement aucun espace de cour avant ni arrière. Le nouveau bâtiment allait devoir mitiger les tensions entre cette proximité avec la rue et le désir d’avoir des espaces ouverts vers l’extérieur.

La façade rappelle les proportions et le rythme des façades avoisinantes et s’inspire du gabarit, des hauteurs et des alignements du front bâti.

Ce sont les particularités du contexte de ce projet qui ont poussé les architectes de Microclimat à réfléchir autrement la composition des pièces et des espaces extérieurs de cette maison unifamiliale à deux étages, afin de maximiser l’intimité des résidents ayant choisi de s’établir au coeur d’un milieu très dense.

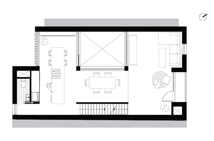
Pour offrir une plus grande intimité aux résidents malgré la densité du quartier, et un espace extérieur malgré la taille réduite du terrain, deux concepts ont été développés : revoir la composition « classique » des espaces de vie (salon, cuisine, salle à manger) pour les situer à l’étage, et percer une cour intérieure qui traverse les étages au centre de la résidence.

Aménager le salon, la cuisine et la salle à manger à l’étage fait en sorte, d’une part, de donner plus de luminosité aux espaces de vie tout en créant une distance entre la rue et ces espaces occupés pendant la journée. Le choix de situer les espaces de vie en hauteur permet ainsi d’intégrer de très grandes fenêtres à l’étage, sans que les habitants aient l’impression de s’exposer à la rue et qu’ils ressentent le besoin de se refermer derrière des rideaux.

La programmation des pièces, réfléchies sur tous les étages, assurent des vues sur l’extérieur dans la grande majorité des pièces du bâtiment, accentuant la relation des résidents avec l’environnement dans lequel le bâtiment s’inscrit.

Inverser la typologie pour aménager les espaces de vie à l’étage renforce aussi l’utilisation de la mezzanine, alors que leur plus grande proximité avec la terrasse sur le toit facilite son utilisation.

Un porche relie l’extérieur à une entrée au centre de la maison. Au sol, la surface de la cour est d’environ 10 pieds par 15 pieds. Elle est semi couverte par la cuisine à l’étage, mais une partie demeure libre, formant comme un grand puits de lumière, vitré et creusé à travers l’étage et de rez-de-chaussée.

La cour intérieure s’avance de l’intérieur du bâtiment vers la ruelle (et inversement).

L’extérieur est contemporain, tout en rappelant des éléments plus traditionnels du patrimoine bâti montréalais. Sur la rue, la résidence s’intègre harmonieusement dans le voisinage, principalement composé de plex construits quelques cent années plus tôt. Les tons pâles de beige et de gris, sans grands contrastes, donnent une impression de douceur.

Les bandeaux horizontaux de pierre – qui coupent et unissent à la fois la façade –, les linteaux de pierre au-dessus des fenêtres et les briques en soldat au sommet enrichissent la composition.

L’implantation côté ruelle propose un décroché de façade permettant de reprendre à toute fin pratique les profondeurs des constructions voisines immédiates, et ce afin d’assurer une continuité des espaces extérieurs et du cadre bâti existant.

Crédit photo : James Brittain