Transformation d’une maison centenaire à Saint-Lambert, guidée par l'équilibre entre intimité et lumière.
Dans le cadre de leur projet, Maude et Mathieu souhaitaient revoir les dimensions, la luminosité et la fonctionnalité de leur propriété sans compromettre l’intimité qu'elle leur procurait au quotidien. Une recherche d’équilibre s’impose, équilibre où la disposition des espaces et la fluidité des circulations crée, discrètement, dans son cœur, une maison plus ouverte.
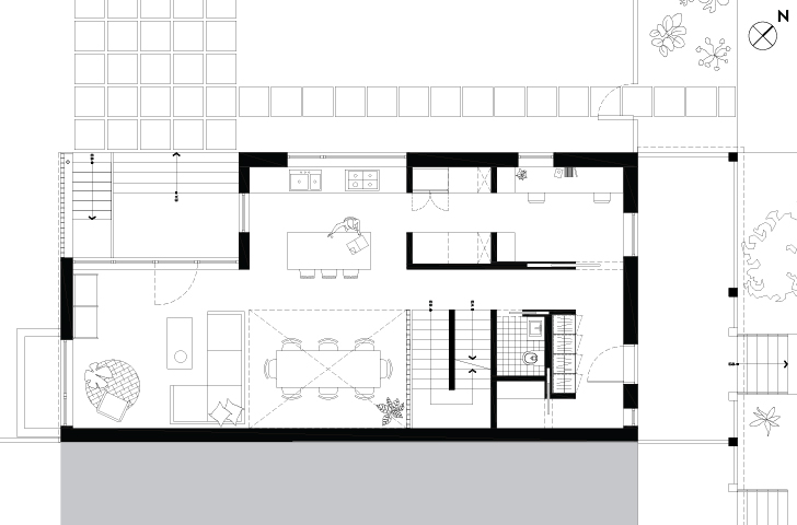
Les ouvertures en façade avant sont fidèles à la composition de l’époque. Les fenêtres percées sur la section agrandie restent discrètes et conservent l’esprit du lieu où la brique prédomine. Les caractéristiques compacte et rectangulaire de l’implantation sont maintenues et l’agrandissement n’empiète pas sur la surface de la cour latérale, facilement accessible par la nouvelle loggia invitant à profiter du plein air.

Volontairement sobre à l’extérieur, le cœur de la maison marque un moment grandiose autour duquel l’on mange, court et rit; un espace perméable et animé où les activités de la maison se déploient sous une douce lumière.
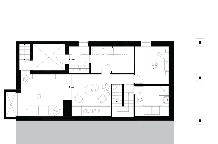
Les volumes repensés et organisés pour créer des zones distinctes, mais connectées, forment un ensemble privilégié. Y alternent des espaces rassembleurs ou intimes, rythmés par des modules en chêne faisant à la fois office de rangement et de cloison.
Une passerelle à l’étage relie le quartier des maîtres à celui des enfants. Elle est composée de planches ajourées qui filtrent la lumière, de la même façon que les garde-corps en tiges de métal. Ces derniers se répètent à l’extérieur afin de créer une résonance avec l’intérieur.
L’ancienne maison, trop petite pour loger confortablement toute la famille, s’est étoffée de deux chambres à l’étage supérieur, d’un bureau au rez-de-chaussée et d’une salle de jeu au sous-sol.
La propriété de Maude et Mathieu, environnement serein magnifié par une palette de matériaux chaleureux, se démarque désormais par ses aménagements qui optimisent confort et fonctionnalité. Autrefois fermée sur elle-même, la maison a préservé son caractère patrimonial tout en offrant des expériences de lumière et de vue renouvelées à partir de l’intérieur.
Crédit photo : Adrien Williams