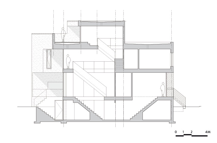
Afin de tirer profit de la luminosité de la cour arrière, une maison de Rosemont est orientée plein sud, comme si elle se dépliait légèrement sur elle-même.


Les clients, une famille avec deux jeunes enfants, recherchaient un terrain qui leur permettrait de construire une maison neuve au coeur de Rosemont-Petite-Patrie. Leur terrain, autrefois occupé par une maison à l’abandon, possède une grande cour arrière orientée plein sud, laquelle est l’inspiration principale du projet.


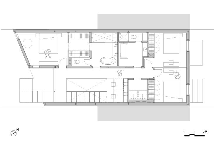
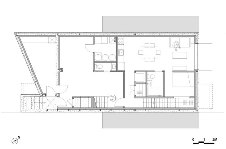
Le projet de résidence unifamiliale s’articule autour de trois niveaux, en plus de comprendre un logement locatif en rez-de-jardin.
Les pièces de jour, située au rez-de-chaussée, sont orientées côté cour afin de laisser filtrer la lumière naturelle et donner l’illusion que l’espace extérieur se prolonge à l’intérieur de la maison.






Crédit photo : Adrien Williams