Un grand arbre enraciné dans la cour arrière devient le point d’ancrage d’un projet d’agrandissement d’une maison centenaire.


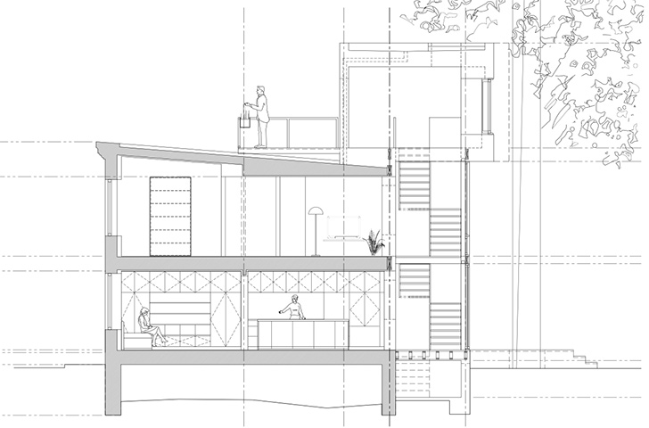
Une famille souhaite repenser l’aménagement de sa maison du Plateau Mont-Royal par la construction d’un agrandissement qui établit un nouveau dialogue avec son environnement immédiat. Afin de respecter le caractère d'origine de la maison et préserver le grand peuplier dans la cour, Microclimat propose une intervention avec une faible emprise au sol et occupant une petite portion du terrain, reliée à la maison d’origine par le percement de deux grandes ouvertures dans l’épaisseur du mur de briques existant.



Cet agrandissement, créant un espace intermédiaire entre la cour et les espaces de vie, permet d’amener une lumière abondante ainsi qu’un nouveau sentiment d’ouverture dans la maison, tout en préservant une certaine intimité avec le voisinage.


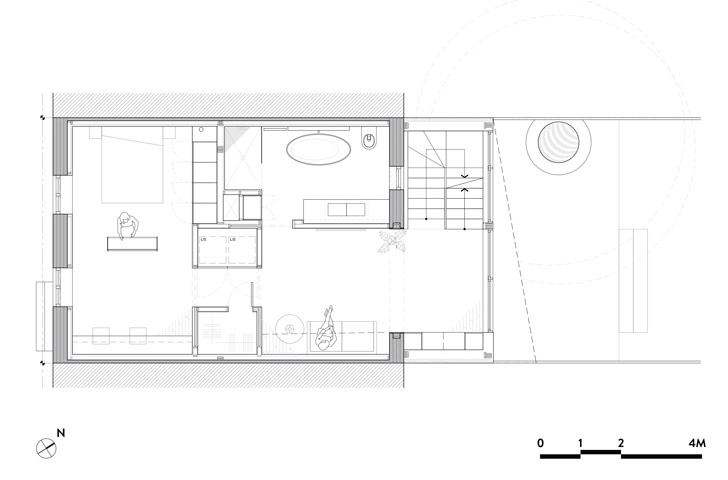
L’aménagement de cet escalier dans la nouvelle construction permet le décloisonnement et la réorganisation complète des espaces intérieurs de la maison d’origine, en plus d’offrir une déambulation verticale en relation directe avec le grand arbre. Deux salons d’hiver, situés près des nouvelles fenêtres en bois de l’agrandissement, viennent offrir un espace de lecture confortable à proximité de la cour.

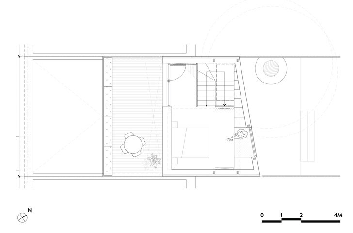
La mezzanine, perchée au sommet du nouveau volume, accueille la chambre des maîtres ainsi qu’un accès à une nouvelle terrasse sur le toit.
Afin de minimiser les modifications à la structure existante de la maison, cette mezzanine est suspendue en porte-à-faux tant côté cour que côté maison, flottant ainsi littéralement au-dessus des maisons existantes.


La résidence Hôtel-de-Ville démontre qu’une intervention architecturale ciblée permet de repenser la façon d’habiter une maison entière, et qu’un lien ponctuel dans l’espace est parfois suffisant pour créer une nouvelle relation entre un bâtiment et son contexte, ici une maison centenaire et sa cour arrière.




Crédit photo : Adrien Williams